Bürogebäude in 15711 Königs Wusterhausen
Status: Zu Verkaufen
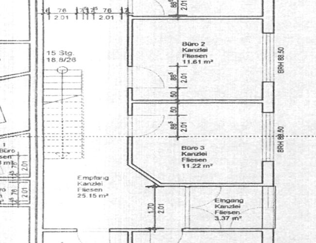
Bereits im Erdgeschoss empfängt ein ebenerdiger Eingang Besucher und Mitarbeiter. Von hier aus gelangt man in einen großzügigen Flur mit einer hochwertigen Treppe, die die einzelnen Geschosse miteinander verbindet. Auf dieser Ebene befinden sich vier helle und gut geschnittene Büroräume, die vielseitig nutzbar sind. Ergänzt wird das Raumangebot durch eine Küche sowie jeweils ein separates Damen- und Herren-WC.
Das Obergeschoss bietet weitere vier Büroräume und schafft damit zusätzliche Arbeits- oder Projektflächen. Eine weitere Küche sorgt auch hier für Komfort im Arbeitsalltag. Zudem steht ein separater Besucherraum zur Verfügung, der sich ideal für Besprechungen, Meetings oder den Empfang von Kunden eignet.
Im Dachgeschoss befinden sich zwei weitere Büroräume, die sich beispielsweise als ruhige Arbeitsplätze oder Leitungsbüros nutzen lassen. Zusätzlich sind hier ein WC mit Dusche sowie der Heizungsraum untergebracht.
Der Keller verfügt über drei Räume, die sich hervorragend als Lagerflächen oder für sportliche bzw. betriebliche Freizeitaktivitäten nutzen lassen.
Direkt am Gebäude stehen ausreichend ebenerdige Parkplätze zur Verfügung, sodass Mitarbeiter und Besucher bequem vor Ort parken können.
Insgesamt bietet diese Immobilie eine durchdachte Raumstruktur, vielseitige Nutzungsmöglichkeiten und eine angenehme Arbeitsatmosphäre.
Für die Richtigkeit der Angaben können wir keine Haftung und/oder Gewährleistung übernehmen. Irrtum und Zwischenverkauf vorbehalten. Sie Ihre Immobilie verkaufen wollen oder müssen, ermitteln wir Ihnen kostenfrei den erzielbaren Verkaufspreis und vermitteln Ihnen die Möglichkeiten für eine optimale Vermarktung.
In der Vermarktungsphase können wir Ihnen alle Arbeiten abnehmen und während der Verkaufsphase werden Sie kontinuierlich über den Bearbeitungsstand informiert. Sie können entscheiden in welchem Maße Sie am Verkaufsprozess beteiligt werden möchten.
Den Verkauf Ihrer Immobilie begleiten wir bis zum Notartermin und der Hausübergabe. Wir unterstützen Sie mit unserem Netzwerk und können die erforderlichen Dienstleistungen rund um den Immobilienverkauf vermitteln um den bestmöglichen Verkauf zu ermöglichen.
Status
Objektart
Haustyp
Typ des Angebots
Wohnfläche
Nutzfläche
Anzahl der Etagen
Anzahl der Zimmer
Anzahl Badezimmer
Grundstücksgröße
Energieträger
Heizungsart
-
Einbauküche
-
Gäste-WC
-
Außenstellplätze
-
Keller
Baujahr
Zustand
Energieausweis
Energiebedarf
wesentlicher Energieträger
Energieeffizienzklasse
Energieträger

Fuchsbau 13
15745 Wildau
T: 0151 62669756
E: flowimmobilien@email.de
W: www.flowimmobilien.de
Sie möchten / müssen Ihr Haus verkaufen?
Falls Sie Fragen haben, rufen Sie uns einfach an – wir nehmen uns gern Zeit für Sie!
Vorab kurz erklärt: wir ermitteln kostenfrei den erzielbaren Verkaufspreis und vermitteln Ihnen die Möglichkeiten für eine optimale Vermarktung. In der Vermarktungsphase können wir Ihnen alle Arbeiten abnehmen und während der Verkaufsphase werden Sie kontinuierlich über den Bearbeitungsstand informiert. Sie können entscheiden, in welchem Maße Sie am Verkaufsprozess beteiligt werden möchten. Den Verkauf Ihrer Immobilie begleiten wir bis zum Notartermin und der Hausübergabe. Wir unterstützen Sie mit unserem Netzwerk und können die erforderlichen Dienstleistungen rund um den Immobilienverkauf vermitteln um den bestmöglichen Verkauf zu ermöglichen.

ImmoScout24-Siegel_Experte-200×200 Kopie

partneraward_partner

IVD_Qualitätssiegel_2021_4c_RZ

800px-Immobilienverband-IVD-Logo.svg









